RESIDENCIAL

En ACT, entendemos que cada vivienda es una expresión personal de quienes la habitan. Por eso abordamos cada proyecto con una visión personalizada, transformando ideas en espacios que combinan funcionalidad, confort y diseño.

Nuestra metodología integra creatividad y precisión técnica, asegurando reformas de alta calidad desde el concepto inicial hasta los acabados finales. Coordinamos meticulosamente cada fase del proceso para garantizar una ejecución eficiente, una comunicación fluida y resultados que superan expectativas.

Déjanos dar forma a tu visión y convertir tu hogar en el espacio que siempre imaginaste.

CASA IVANKA ARIJA

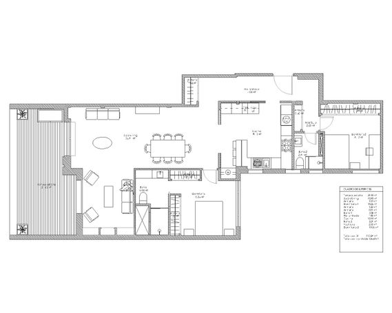
ESTADO PREVIO

El proyecto CASA IVANKA abordo la renovación integral de un apartamento de 140 m², transformando por completo su distribución para optimizar al máximo el espacio disponible. La vivienda original contaba con dos dormitorios y dos baños, pero su planteamiento inicial no lograba obtener el verdadero potencial.

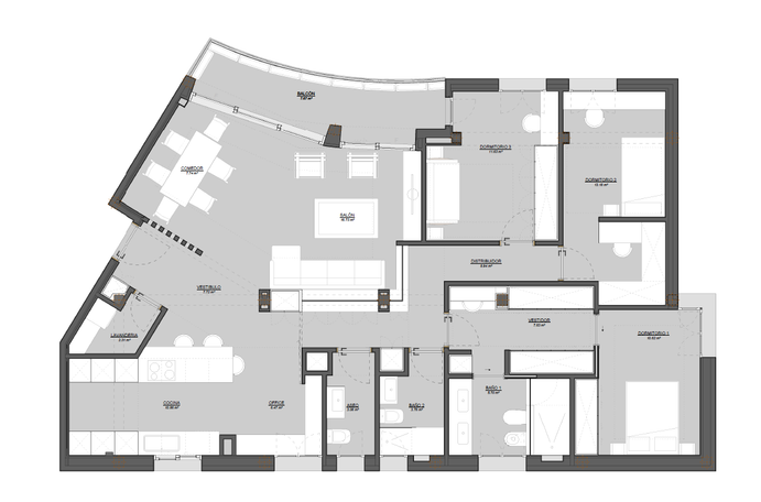
CASA IVANKA ARIJA

ESTADO REFORMADO

El proyecto busca modernizar la vivienda y optimizar sus espacios, ampliando la cocina y el segundo dormitorio, además de reorganizar la distribución de los baños para lograr una mayor funcionalidad. La reforma incorpora una paleta de materiales mas luminosa y contemporánea, mejorando la     percepción espacial y aportando una mayor sensación de amplitud. La zona de día se reconfigura para conseguir una distribución mas fluida entre   salón, comedor y cocina; como resultado obtenemos una vivienda mas actual, confortable y adaptada. 

CASA MARTINA

ESTADO PREVIO

Ubicada en la séptima planta, esta vivienda presenta una distribución tradicional que separa el área familiar del área de servicio. La configuración original desperdicia una cantidad significativa de espacio en pasillos, afectando la eficiencia y funcionalidad general del inmueble.

CASA MARTINA

ESTADO REFORMADO

El diseño de Casa Martina busca resaltar el potencial luminoso del inmueble, creando un espacio diáfano donde la luz fluye sin obstáculos. La distribución prioriza la apertura, con áreas de salón, comedor y cocina concebidas como espacios fluidos, definidos sutilmente por cambios de altura.

Para preservar la sensación de amplitud, se evita la segmentación con tabiques sólidos, optando por un mueble especial con medio cuerpo de vidrio, que genera una transición delicada entre el área pública y privada.

La propuesta combina un enfoque moderno con acabados elegantes y serenos, incorporando detalles personales que aportan carácter y calidez al espacio.

Necesitamos su consentimiento para cargar las traducciones

Utilizamos un servicio de terceros para traducir el contenido del sitio web que puede recopilar datos sobre su actividad. Por favor revise los detalles en la política de privacidad y acepte el servicio para ver las traducciones.